Rif: MM PORTA VENEZIA
MILANO
MILANO - zona Buenos Aires
A soli 350 metri dalla fermata MM Porta Venezia Imparato Servizi Immobiliari propone ampio locale commerciale situato in una delle zone più prestigiose e vivaci di Milano.
La soluzione si sviluppa al piano rialzato ed interrati di uno stabile signorile anni '30, in posizione angolare grazie alla quale il locale beneficia di una luminosità naturale eccezionale, creando un ambiente accogliente ed invitante.
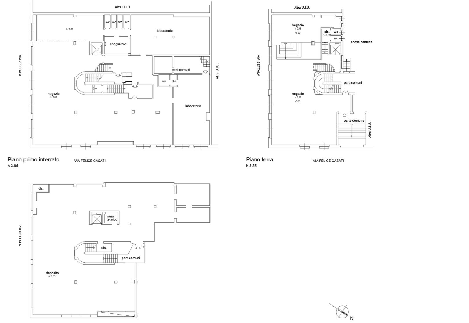
La soluzione è così suddivisa : 210 mq al piano rialzato caratterizzato da scenografica scalinata, doppi servizi e ribassamenti con faretti , 466 mq al piano seminterrato finestrato in parte adibito a negozio in parte a laboratorio, con altri 4 servizi (commerciali 233 mq), 337 mq al piano seminterrato -1 uso deposito (commerciali 84 mq). I piani sono collegati tra di loro tramite scala interna e ampio montacarichi. Completano la soluzione 3 posti auto all'interno del condominio.
POSIZIONE STRATEGICA: Situato in Via Felice Casati 17, questa soluzione gode di una posizione privilegiata nel cuore della città, garantendo massima visibilità e accessibilità.
VERSATILITÀ': Con una metratura totale di oltre 500 mq commerciali questo spazio offre ampie possibilità di personalizzazione per adattarsi alle esigenze del vostro business, che si tratti di un negozio, un ufficio o uno showroom.
DESIGN MODERNO: L'ambiente è caratterizzato da un design contemporaneo e raffinato, che si presta perfettamente a molteplici stili e concept commerciali.
ACCESSIBILITÀ: Il locale è facilmente raggiungibile con mezzi pubblici e dispone di diverse opzioni di parcheggio nelle vicinanze, garantendo comodità sia per i clienti che per il personale.
La soluzione si sviluppa al piano rialzato ed interrati di uno stabile signorile anni '30, in posizione angolare grazie alla quale il locale beneficia di una luminosità naturale eccezionale, creando un ambiente accogliente ed invitante.
La soluzione è così suddivisa : 210 mq al piano rialzato caratterizzato da scenografica scalinata, doppi servizi e ribassamenti con faretti , 466 mq al piano seminterrato finestrato in parte adibito a negozio in parte a laboratorio, con altri 4 servizi (commerciali 233 mq), 337 mq al piano seminterrato -1 uso deposito (commerciali 84 mq). I piani sono collegati tra di loro tramite scala interna e ampio montacarichi. Completano la soluzione 3 posti auto all'interno del condominio.
POSIZIONE STRATEGICA: Situato in Via Felice Casati 17, questa soluzione gode di una posizione privilegiata nel cuore della città, garantendo massima visibilità e accessibilità.
VERSATILITÀ': Con una metratura totale di oltre 500 mq commerciali questo spazio offre ampie possibilità di personalizzazione per adattarsi alle esigenze del vostro business, che si tratti di un negozio, un ufficio o uno showroom.
DESIGN MODERNO: L'ambiente è caratterizzato da un design contemporaneo e raffinato, che si presta perfettamente a molteplici stili e concept commerciali.
ACCESSIBILITÀ: Il locale è facilmente raggiungibile con mezzi pubblici e dispone di diverse opzioni di parcheggio nelle vicinanze, garantendo comodità sia per i clienti che per il personale.
Consistenze
| Descrizione | Superficie | Sup. comm. |
|---|---|---|
| Principali | ||
| Negozio - piano rialzato | 210 Mq | 210 Mqc |
| Negozio - seminterrato | 466 Mq | 233 Mqc |
| Magazzino - piano interrato | 337 Mq | 84 Mqc |
| Totale | 527 Mqc | |








